Cultural Center Ferrara
PUBLIC & PRIVATE | THE CHEESE SQUARE
The project deals with filling an urban void in the center of Ferrara.
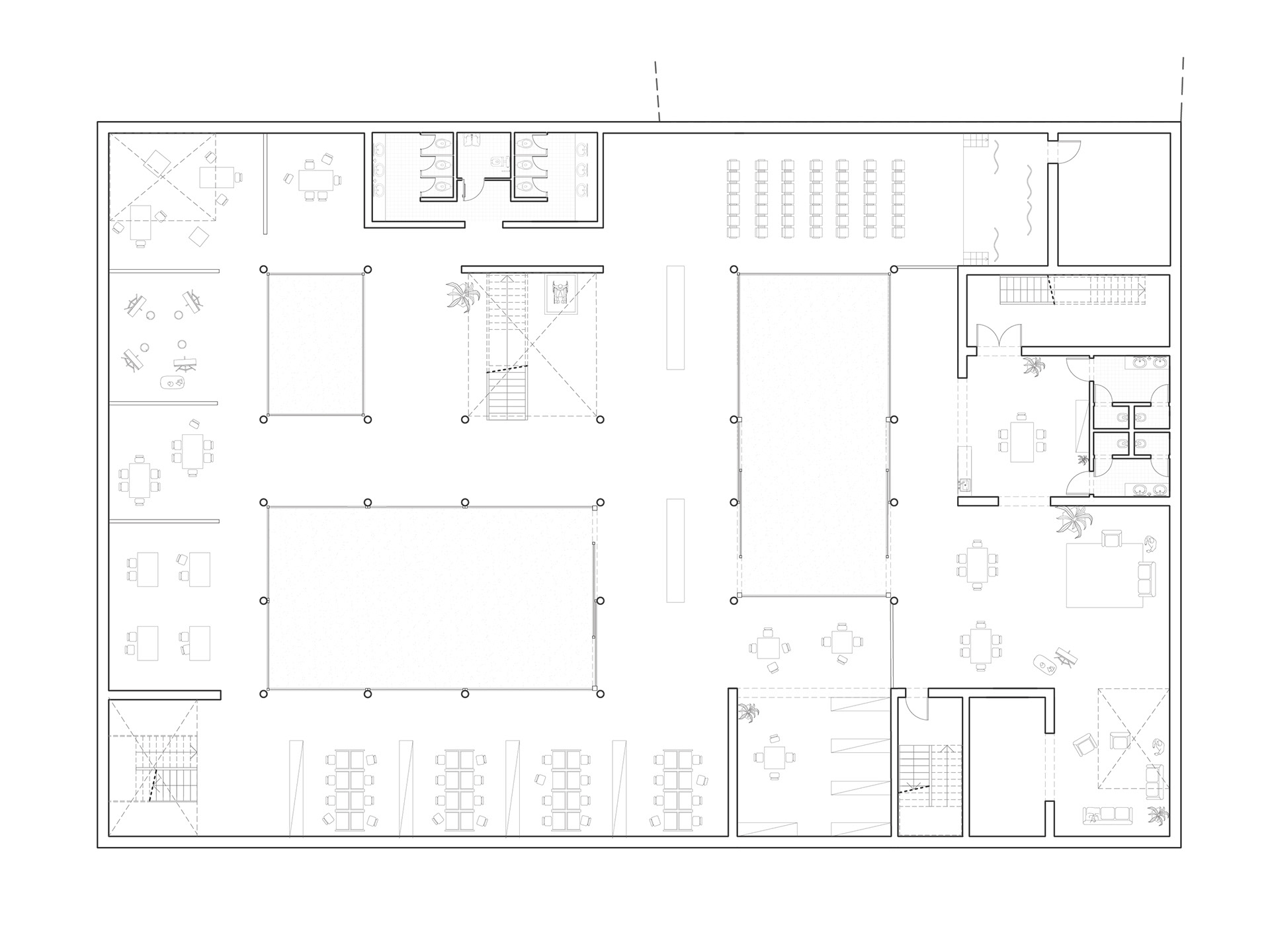
From the urban analysis we understood that it is fundamental to put in close relationship the public square and the Cultural center. So we got the idea of moving all the activity and the labs underground and use all the area as a public space. We got two parallel layers: the square and the labs.
As a consequence there are holes that visually connect the square and the spaces and can be used as a patio for the people as well as the contribution of light and air. This is the reason why we call it chess square.
From the urban analysis we understood that it is fundamental to put in close relationship the public square and the Cultural center. So we got the idea of moving all the activity and the labs underground and use all the area as a public space. We got two parallel layers: the square and the labs.
As a consequence there are holes that visually connect the square and the spaces and can be used as a patio for the people as well as the contribution of light and air. This is the reason why we call it chess square.
After that, through these two layers there are volumes of different heights and proportions that act as entrances and hosting private rooms. thay are strictly connected to the square and the labs.
As a result we got a porous space which creates a feeling of openness especially when coming from a narrow alley.
As a result we got a porous space which creates a feeling of openness especially when coming from a narrow alley.
Place: Ferrara (IT)
Year: 2019
Type: Cultural Center
Area: 900 m2
Team: G. Biotti - L. Cicognani - N. Roso
Professor: A. Frediani
Year: 2019
Type: Cultural Center
Area: 900 m2
Team: G. Biotti - L. Cicognani - N. Roso
Professor: A. Frediani
















