Work
Info
Work
Info
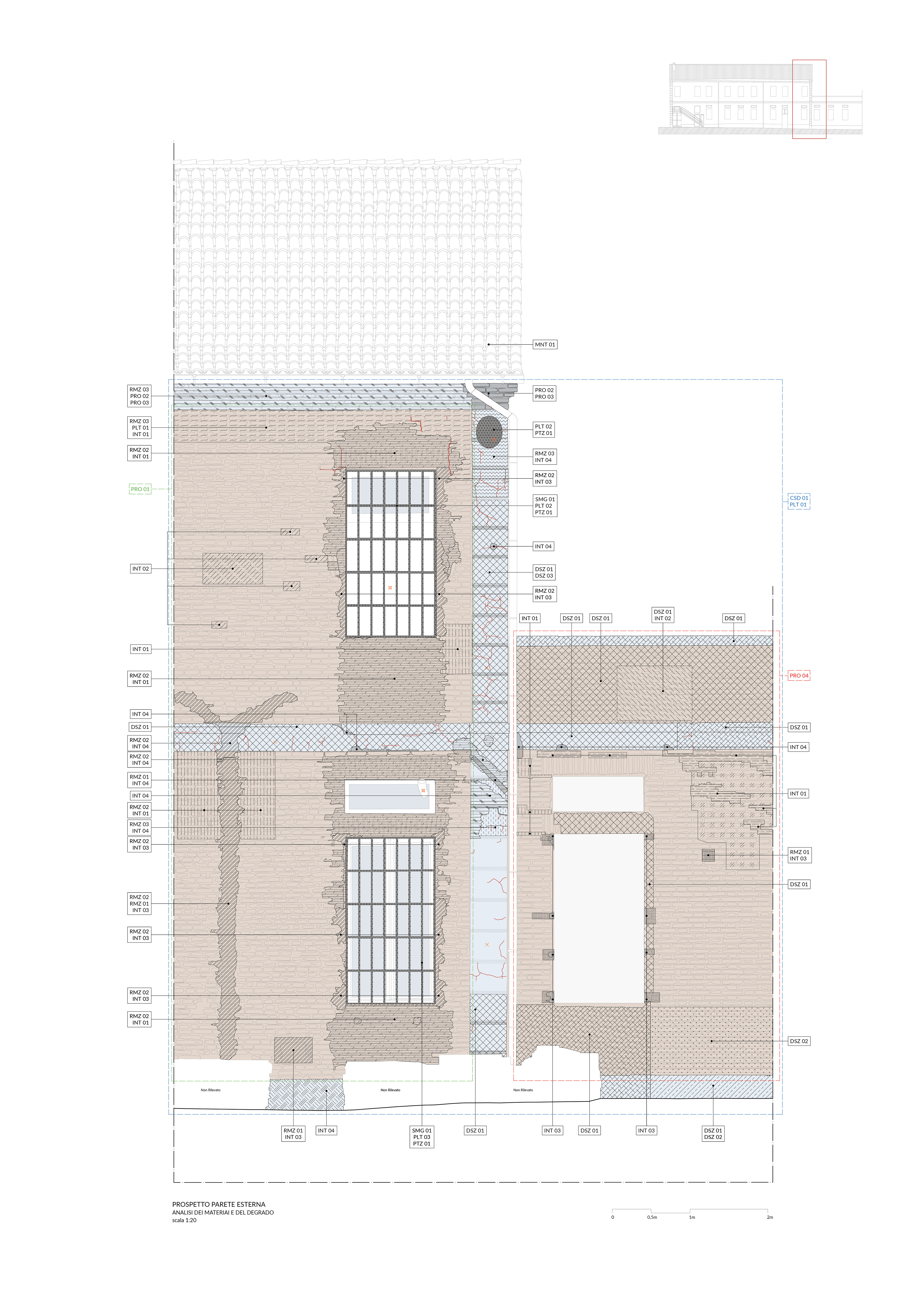
Restoration Palazzo Tassoni
You may also like
Portfolio - Nicola Roso
2021
Motion Graphics
2020
Cultural Center Ferrara
2024
Collectra(sh)
2024
DT-CNTR
2023
Camposaz 37:37
2024
Bologna Comparto Nord
2024
From Steel to Data
2024
Saving From the Highway
2024
No Land Lab
2024
↑
Back to Top